Featured
- Get link
- X
- Other Apps
Vue Isométrique Catia
Vue Isométrique Catia. Ont créé ensuite une vue iso : Insérer la numérotation sur la vue en perspective éclatée;

En manipulant ces fleches tu choisis ta vue 3d. Par exemple, dans un plan de. Vue de face, projection dépliée, issue du 3d, auxiliaire, isométrique.
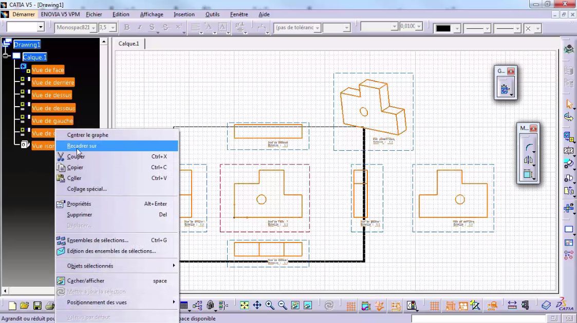
Une Fois L'icone Orangée, Tu Vas Sur Ton Product Et Tu Sélectionne L'axe De Ta Vue Isométrique.
Personnalisation de la génération des cotes (géométrie) (filetages) € € mise en route avant de procéder. Cette formation est conçue pour permettre aux utilisateurs de maitriser l’atelier de mise en plan de catia v5 (drawing). Basculez vers une vue d'élévation ou en plan appropriée pour les rendre visibles.
Concepteurs 3D Et 2D Utilisant Catia Dans Le Cadre De Projets D'ingénierie.
Si l’orientation change, il suffira de changer le plan de projection de la vue, je valide. Nous avons choisi de présenter le dessin de définition de la pièce 2 ( support principal) en la positionnant en vues de face, isométrique et en coupe vue de gauche avec un détail sur son perçage intérieur. On a la possibilité dafficher des.
Afficher L’espace Caché (Vert) Ou L’espace Non Caché (Violet), Tout Dépendant Dans Lequel Est Activé.
Je le mets en vue isométrique (celle de catia). Gestion des vues propriétés, déplacer, isoler, dupliquer. Cliquez sur lâ icône vue isométrique situé dans la même barre dâ outils que la vue projetée.
Analyse Structurelle Des Solutions Technologiques Ère Représentation Technique Du Bien Cours Page 4 / 42 1 Année Sts Maintenance E Document Présente De Façon Succincte Les Techniques De Représentation Utilisées En Bureau D’études, Aussi
Catia drafting , couleur de la vue isométrique problème de conformité avec la couleur de la pièce cat part. Paramètres, formules, tables de paramétrage et catalogues. Par exemple, dans un plan de.
Régler Les Propriétés Des Vues;
Cotation de la vue de face; Par contre, dans le calque, il n'y aucune couleur sur cette vue. Mise en plan catia :
Comments
Post a Comment